skok na glavno vebino izjava o dostopnosti

Nerealizirana načrta

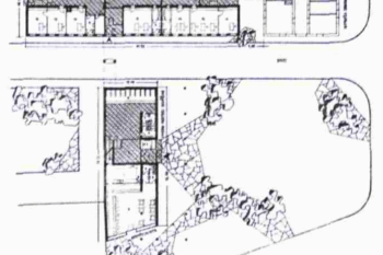
PRIZIDEK K OBČINSKI STAVBI
Leta 1955 je Marjan Šorli sodeloval na natečaju za OLO Kranj (Občinski ljudski odbor – danes Mestna občina Kranj) za prizidek k predhodni občinski stavbi. Skupaj z Ivom Medvedom in Stankom Rohrmanom je prejel izenačeno II. nagrado, izbran pa je bil načrt Edvarda Ravnikarja.

Olvasás tovább

Fotó galéria

Natečaj za OLO Kranj
Tloris za OLO Kranj
Načrt za trafiko
Adatvédelmi áttekintés

Ez a weboldal sütiket használ, hogy a lehető legjobb felhasználói élményt nyújthassuk. A cookie-k információit tárolja a böngészőjében, és olyan funkciókat lát el, mint a felismerés, amikor visszatér a weboldalunkra, és segítjük a csapatunkat abban, hogy megértsék, hogy a weboldal mely részei érdekesek és hasznosak.

Szűrési lehetőségek

Keresés

Tartalom típus

Kategória
Kategória
Kategória
Kategória
Kategória

Régió választása


2008 - 2026 © KAMRA, Production: TrueCAD d.o.o.